OTTIMO INVESTIMENTO Viareggio Centralissimo, fondo commerciale in ottime condizioni
- Rif.: FDC308
- Zona: centro - viareggio
- Superficie: 40 mq
- Bagni: 2
Descrizione
In un’ottica di concretezza e professionalità,
questo fondo commerciale rappresenta un’opportunità strategica nel cuore di
Viareggio, situato in una posizione di alto valore tra la zona del Mercato e la
rinomata Passeggiata. L'immobile, posto al piano terra e caratterizzato da
un’ampia vetrina su strada che garantisce ottima visibilità, è stato oggetto di
una ristrutturazione completa che ne ha modernizzato impianti e finiture,
portandolo a un’efficiente classe energetica C.
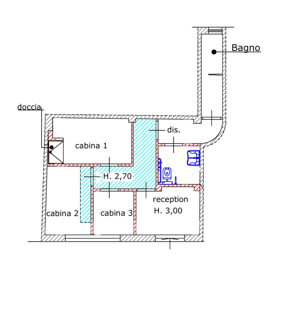
Attualmente lo spazio ospita un centro
estetico, con una distribuzione interna razionale ottenuta tramite pareti in
cartongesso che permettono di mantenere la suddivisione in più vani funzionali
o di rimodulare gli ambienti con estrema facilità. La presenza di due bagni e
la cura dei dettagli interni rendono la struttura immediatamente operativa per
finalità professionali.
Questo fondo commerciale rappresenta una
soluzione ideale per chi desidera avviare attività come: atelier di moda o
accessori, boutique di profumeria o di cosmesi, studio di consulenza
specialistica, agenzia di viaggi, studio di professionisti, piccola enoteca o
negozio per capsule di caffè, ecc…
Possibilità di acquistare a parte l’attrezzatura del
Centro Estetico, prezzo da concordare con la proprietaria. Classe energetica C
207,27 Kwh/m2anno. Rif. FDC307. Rich. € 190.000 tratt.
| Altre Caratteristiche | |
|---|---|
| Tipologia: | Fondo Commerciale |
| Contratto: | Vendita |
| Zona: | centro - viareggio |
| Condizioni: | Ristrutturato |
| Riscaldamento: | Autonomo |
| Condizionatore | si |
| Numero Vani: | 4.0 |











