Viareggina chiavi in mano in ottima zona a due passi dal mare
- Rif.: VC436
- Zona: centro - viareggio
- Superficie: 213 mq
- Camere: 4
- Bagni: 3
- Giardino: Privato
- Cucina: Cucinotto
Descrizione
Questa
splendida proprietà è una Viareggina
che gode di una posizione privilegiata, trovandosi letteralmente a due passi dal mare. L'immobile è
attualmente in fase di ristrutturazione
completa e verrà consegnato con la formula chiavi in mano, garantendo un'abitazione nuova e pronta da vivere.
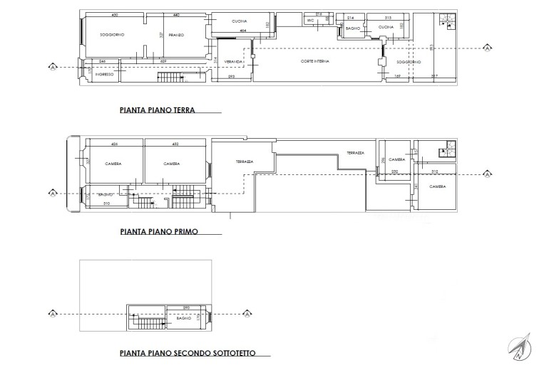
La Viareggina
si sviluppa su più livelli, partendo dal piano terra con un ingresso che conduce al vano scale e alla
funzionale zona giorno, suddivisa tra un accogliente salotto e un'area pranzo.
Il piano è completato da un cucinotto, un bagno e una comoda veranda. Da qui si
accede anche a un riservato cortile
interno molto spazioso, ideale per pranzi e cene all’aperto, ed una comoda lavanderia.
Salendo, si
raggiunge il piano mezzanino, un
punto di snodo fondamentale che offre l'accesso a una grande terrazza. Questa terrazza non è solo uno spazio esterno
vivibile, ma funge da congiunzione con l'altra unità della proprietà: una
graziosa casa di corte.
Quest'ultima si sviluppa su due livelli, offrendo al piano terra un soggiorno,
cucina e bagno, mentre al piano superiore dispone di due camere con una propria
terrazzina abitabile. La casa di
corte dispone del suo accesso dal cortile interno.
Tornando al
corpo principale della Viareggina, il primo
piano ospita la zona notte, composta da un disimpegno, un bagno
finestrato e due camere matrimoniali,
di cui una con balcone. Infine, il secondo
piano sottotetto offre un grande e versatile locale openspace.
Si tratta di
una soluzione abitativa unica, ad un passo dai principali servizi e con la
garanzia di una ristrutturazione completa e di alta qualità. Classe energetica
in corso. Rif. VC436 Rich. €698.000 tratt.
| Altre Caratteristiche | |
|---|---|
| Tipologia: | Viareggina |
| Contratto: | Vendita |
| Zona: | centro - viareggio |
| Condizioni: | Nuova Ristrutturazione |
| Riscaldamento: | Autonomo |
| Condizionatore | si |
| Numero Vani: | 11.0 |
| Distanza dal mare: | 300 |



